
MIL-DTL-16036M(SH)
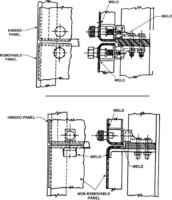
FIGURE 21. Typical panel latch bolt for hinged and removable panel.
FIGURE 22. Typical panel latch bolt for hinged panel and method of securing stationary panel.
84
For Parts Inquires submit RFQ to Parts Hangar, Inc.
© Copyright 2015 Integrated Publishing, Inc.
A Service Disabled Veteran Owned Small Business